本项目位于成都市,丙类固体制剂车间,总建筑面积1661m2,建筑高度8.35m,地上1层, 共一个防火分区,净化区域为 D 级净化区。净化区域面积为 1012m2。设计范围为净化区域的空调设计。
1 设计参数和基础资料
1.1 室内外设计参数

夏季空气调节室外计算干球温度:31.8℃;夏季空气调节室外计算湿球温度:26.4℃。
夏季室外通风干球温度:28.5℃;冬季空气调节室外计算干球温度1℃。
冬季空气调节室外计算相对湿度:83%。
1.2 土建资料
本建筑为钢筋混凝土框架结构,壁厚 240mm,屋面构造类型为轻钢屋顶,除开机房,其余区域均有吊顶。室内分隔均采用50mm彩钢板。
1.3 冷热负荷
夏天冷负荷采用逐时冷负荷系数法计算,使用时间 9:00~18:00;冬天热负荷采用稳态传热理论计算。各负荷计算汇总表如表 2 所示。

2 空调系统的设计
2.1 冷热源的选择
该净化空调设计冷负荷 920kW,空调设计热负荷 400kW。冷源采用一体式风冷机组,位于该建筑空调机房室外,提供的 7℃/12℃的冷水;热源以及加湿均采用车间0.3MPa 蒸汽。
2.2 空调系统方案
2.2.1 净化空调空气处理方案
本工程净化区域采用全空气变风量系统,保证房间温湿度均达到规范要求。空气处理方案见图1,新风与回风混合后处理。
2.2.2 净化空调风量计算
根据规范要求,医药洁净室的送风量除要达到要求的空气洁净度级别外, 还有温度、 湿度, 室内风量平衡(包含补偿室内排风量和为保证正压所需风量)和恢复时间等要求,所以应将各种情况所需的送风量予以比较,并取最大值作为医药洁净室的送风量。根据房间发热散湿, 确定最终换气次数。
医药洁净室的新鲜空气量应根据以下两部分风量之和,与室内人员所需的最少新鲜空气量相比较,取两项中的最大值:(1)室内的排风量,包括工艺设备排风、部分空间热湿、异味、 危险气体等的排风;(2)保证室内压力所需压差风量,压差风量宜采用缝隙法或换气次数法确定。根据规范要求,净化区域人员新风量不小于40m 3 /(人·h),与净化区域计算新风量取大值。
房间换气次数以及风量如表 3 所示。

2.2.3 净化空调排风系统
根据工艺要求,部分产尘产湿房间需要排出室外, 排风应符合环保要求。 故此本项目的制浆间、清洗间以及压片间、胶囊间等需要设置排风系统。 制浆间与清洗间属于热湿房间, 故此合用一套排风系统。压片间与胶囊间等产尘房间合用一套系统。排风均采用初效中效过滤后排出室外,其中热湿房间的排风系统需要耐热湿。
排风计算根据风量平衡表计算所得,排风机考虑漏风系数附加10%,风机阻力根据计算所得, 并考虑15%的附加系统。排风机上均设置电动阀,同启同闭。
排风机参数如表 4 所示。

2.2.4 净化空调压差设置
本项目为绝对正压净化区,因此不同空气洁净度级别的医药洁净室之间以及洁净室与非洁净室之间的空气静压差不应小于 10Pa,医药洁净室与室外大气的静压差不应小于 10Pa。房间压差设置如图 2 所示。

2.2.5 净空空调气流组织
本工程为 D 级净化区,气流组织采用非单向流流型。气流流向从洁净度较高一端流向略低一端。送风方式采用顶送下侧回。
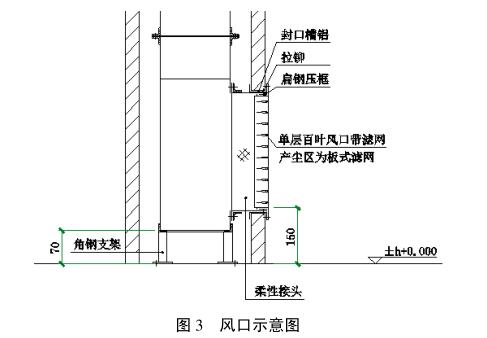
送风口采用高效送风口平送贴附射流,布置风口时,风口之间的间距及离墙的距离,一方面应使射流有足够射程,另一方面又应使射流扩散效果好,布置时应考虑建筑结构的特点,平送方向不得有障碍物,气流组织采用顶送下侧回。回、排风口均采用单层百叶风口带滤网。
为了对医药洁净室进行噪音控制,除了设置微穿孔板消声器以及选用高效率、低噪音设备外, 还得控制气流组织的风速。总风管为6~10m/s,无送风、回风口的支风管为 4~6m/s,有送风口、回风口的支风管为2~5m/s,高效送风口颈部流速4m/s, 回风口的风速限制在 3m/s 以下。
净化过渡区域采用洁净空调送风,利用压差风口排向非净化区域。
送排风示意图如图 3 所示。

2.2.6 净化空调空气处理系统
根据净化需求,净化空调机组的组合段设置段落为:混合、初效、表冷、送风机、均流、加湿、加热、中间、中效、送风段,末端设置高效送风口。
机组长度为9m×2.5m。
空调机组的空气过滤器宜设置过滤器阻力监测、报警装置,其阻力应符合下列规定:(1)粗效过滤器的初阻力不应大于50Pa,终阻力不应大于100Pa;(2)中效过滤器的初阻力不应大于80Pa,终阻力不应大于 160Pa;(3)高中效过滤器的初阻力不应大于100Pa,终阻力不应大于200Pa;(4)亚高效过滤器的初阻力不应大于120Pa;终阻力不应大于240Pa。
机组参数如表 5 所示。

2.2.7 净化空调消毒排风系统
本项目洁净区采用外置式臭氧发生器进行消毒,经计算所得,臭氧产量所需 141g/h。根据样本,臭氧发生器臭氧产量:200g/h,电功率:2kW/220V,柜式,水冷+风冷冷却方式。
消毒排风时,利用空调机组送风,空调机组考虑变频至 50%来选择消毒排风机。根据 2.2.4 可知空调机组的风量。故此选择的消毒排风机参数为:风量 40000m 3 /h, 风机压头: 550Pa, 风机功率:11kW/380V,风机重量:500kg,风机噪音:85db。
2.3 空调水系统方案
本项目空调水系统包括冷水系统、冷凝水系统和补水系统。冷水冷采用闭式系统,仅供一台室内空调机组。冷源侧采用定流量系统,负荷侧采用变流量系统;一次泵、双管制、变流量系统,用气压补水罐定压。冷源为一台一体式风冷冷水机组,机组包含冷源侧所有设备:定压装置、水泵、压差旁通以及补水装置。
水管管径,水泵扬程通过水力计算确定,水力计算采用假定流速法。
补水系统直接接自来水系统,补水量设计为空调系统水量的 2%左右。
冷凝水管一般根据现场布置要求实际情况布管,室内机组的冷凝水管统一机房内的地漏排出;
室外一体机组冷凝水就近排放于室外管网。
3 结语
根据工艺要求以及相关规范,设计净化空调系统,基本达到施工标准以及GMP 验证要求。
- 上一篇:洁净厂房湿度控制
- 下一篇:化工行业净化车间装修